您也可以在下面给我们留言,我们将热忱为您服务!
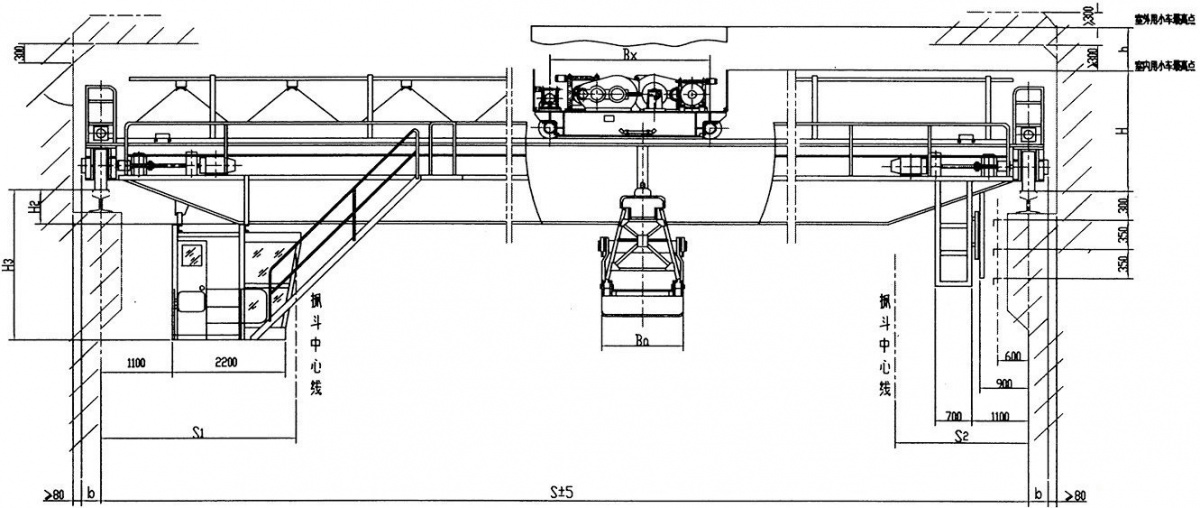
双梁抓斗桥式起重机产品介绍:
QZ型双梁抓斗桥式起重机由箱型桥架、大车运行机构、小车、抓斗、电气设备五部分组成,全部机构均在操纵室内操纵。取物装置为双卷筒的四绳抓斗,抓斗可在任一高度张开和闭合,适用于抓取自然堆积状态下的散粒物料,当抓取物料颗粒大于200mm时需选用带齿抓斗。当抓取水下物料或其它物料时需在订货时**提出,当露天使用需带防水设备。本抓斗起重机具有结构简单,工作的特点。
双梁抓斗桥式起重机应用:
双梁抓斗起重机适用于冶金、水泥、化工及其他企业的仓库和车间在室内或露天和固定跨间从事矿石、石灰石、矿粉、焦炭、煤砂等散粒物的搬运工作。
双梁抓斗起重机结构简图:


从售前到售后,我们将不遗余力为您提供整体解决方案和一站式服务
您也可以在下面给我们留言,我们将热忱为您服务!