QX型回转挂梁桥式起重机

QX型回转挂梁桥式起重机

所属分类:双梁起重机系列
产品概述: 旋转电磁挂梁桥式起重机产品介绍:QX型旋转电磁挂梁桥式起重机有可旋转挂梁,适用于钢厂、堆场和仓储等室内或露天的固定跨间,装卸及搬运钢板、型钢、盘卷等物料。**适用于吊运不同规格且需水平旋转的场合。挂梁......
实力厂家 运行稳定 降本增效 支持定制
60s急速响应 30min答复 24h免费定制方案
产品介绍

旋转电磁挂梁桥式起重机产品介绍:
QX型旋转电磁挂梁桥式起重机有可旋转挂梁,适用于钢厂、堆场和仓储等室内或露天的固定跨间,装卸及搬运钢板、型钢、盘卷等物料。**适用于吊运不同规格且需水平旋转的场合。挂梁下可以携带电磁吸盘、夹钳等专用吊具。  
可伸缩挂梁能够根据所吊物料的规格(不同厚度、长度、张数等)和重量,电动调整电磁铁间距及无级调节电磁铁磁力。根据用户要求可提供:各机构的调速(1:10或更大)、载及报警、遥控、PLC控制及故障检测、显示、记录和打印系统等。
1、进入司机室的走台方式分为:端入、侧入、顶入。
2、起重量包含挂梁及专用吊具自重;
3、挂梁*大旋转角度可按用户要求;
4、以上数据为室内使用时;
5、参数表中起重机总功率为行车本体功率,不含专用吊具功率。

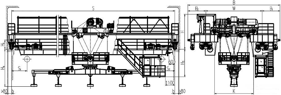
上旋转电磁挂梁桥式起重机结构图:

1.jpg2.jpg

相关产品

合作案例10000+ 家客户倾心之选
我们的优势

从售前到售后,我们将不遗余力为您提供整体解决方案和一站式服务

实力厂家
我们始终秉持“专一、专注”的精神,提供匠心工具,服务全球千万用户
经验丰富
我企业拥有大量大型项目服务经验,是中铁、中建等各大企业的合作供应商
质量保障
厂区6S管理体系,提高服务,保证质量,为企业输出的产品质量保驾护航
售后支持
开设24小时免费热线,对客户提出的维护要承诺时间内提供完善的售后服务
在线留言 如果您正在寻找相关产品或有其他任何问题可随时拨打我公司销售热线 13598730013

您也可以在下面给我们留言,我们将热忱为您服务!