您也可以在下面给我们留言,我们将热忱为您服务!
结构形式与MG型起重机基本相同,一侧有支腿,在地面轨道上运行;另一侧无支腿,在厂房上部的轨道上运行。
双梁半门式起重机产品介绍:
MGB型双梁半门式起重机一端架设在车间梁上,另一端在地面轨道上运行, 多用于露天及铁路沿线等场所的起重运输作业。具有结构紧凑、经济实惠、生产效率高等特点。起重机导电形式分为电缆卷筒和安*供电滑触线供用户选用。
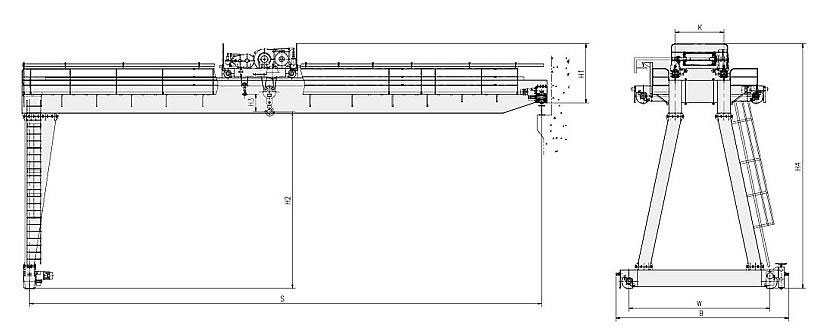
双梁半门式起重机结构简图:

从售前到售后,我们将不遗余力为您提供整体解决方案和一站式服务
您也可以在下面给我们留言,我们将热忱为您服务!